College Redevelopment

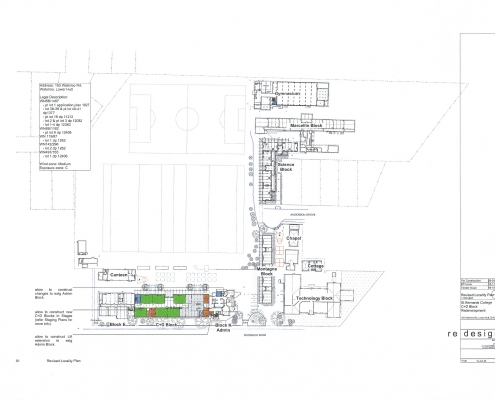
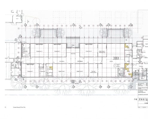
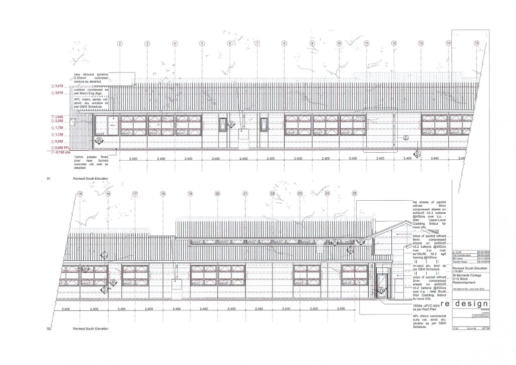
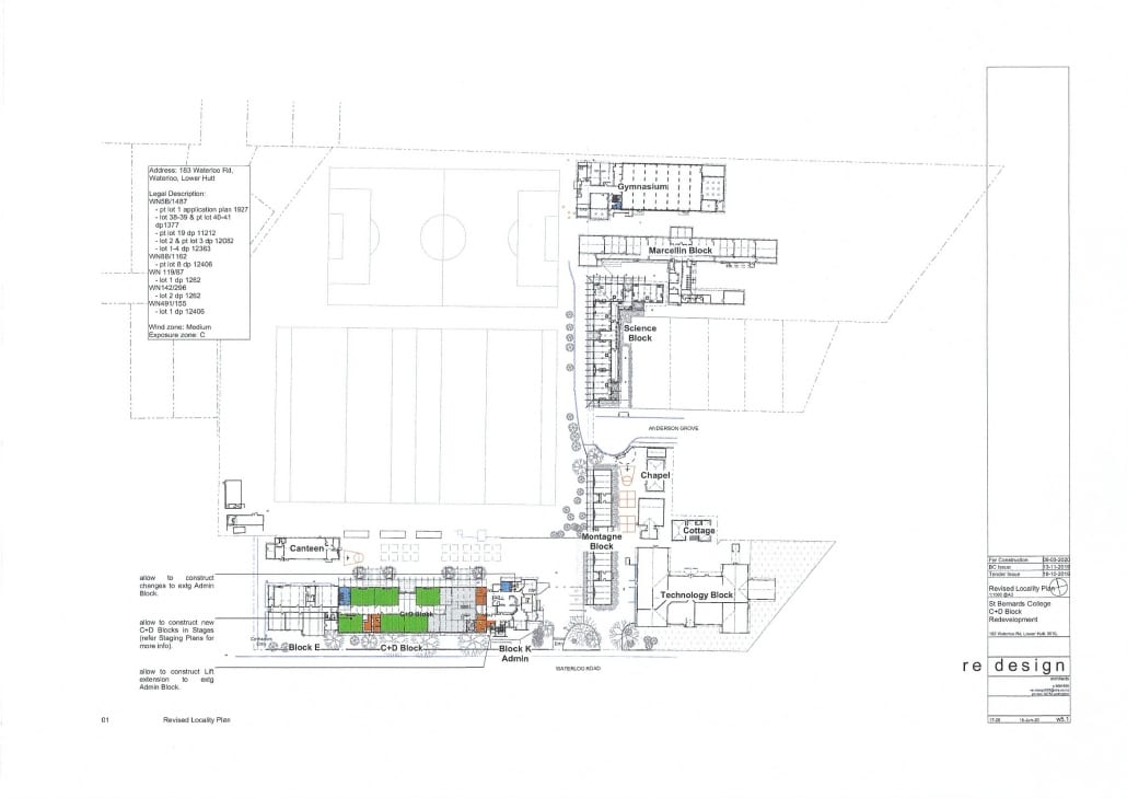
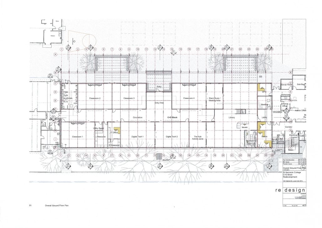
The St Bernard’s College Redevelopment Programme began in 2015 with the commissioning of the Montagne RE Block. In 2018 the gym complex was developed with the addition of a new entrance and foyer, PE classroom and Specialist weights room. A new commercial kitchen will complete this project in 2021. The new Science Block, Gregor Mendel was opened by Cardinal John Dew in January 2020. The Old Main block is being demolished and will make way for a new Block with Stage One to be completed in April 2021 and the final Stage completed in early 2022.
St Bernard’s College will be able to offer state of the art ‘Modern Learning Environments and some of the best facilities in the Hutt Valley and beyond.
We will be updating this page from time to time so please come back again for look at how the redevelopment is progressing!
Useful pages
School App
To keep up to date with all that is going on at St Bernard’s College download the Helix SMS app from the App Store or Google Play.
1. Open App Store or Google Play
2. Search for Helix SMS
3. Download the app
4. Login with the email address you provided the College

























